首页
关于融境
公司介绍
融境文化
融境团队
董事长致辞
产品服务
文旅产品
装配建筑
装修改造
乡村振兴
媒体中心
新闻
视频
加入融境
联系融境
TEL:023-65162299
首页
/
产品服务
/
装配建筑
/ > 中式别墅B系
中式别墅B系
2023-07-03 11:07:26
▲立面效果图
施工面积:
约489平
占地尺寸:
12.6m×13.5m
房屋构造:
6室3厅4卫
结构形式:
砖混结构
占地面积:
约160平
建筑面积:
约480平
业主要求
本次建房共三层,
喜欢新中式风格
需要6个卧室
,
其中两个客房放2个单人床
喜欢旋转楼梯,
其他要求空间布局舒适、合理
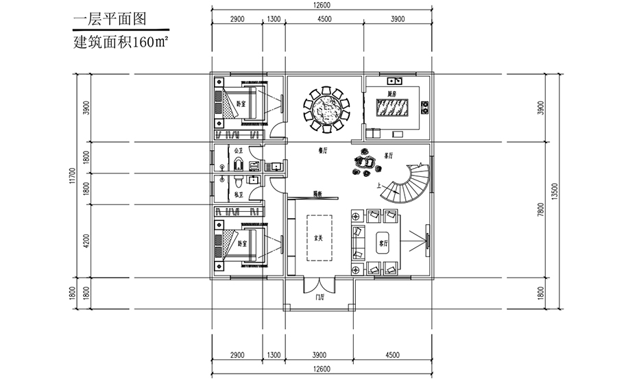
户型图设计
卧室2
餐厅
厨房
玄关
卫生间2
一层为活动区
入户设置玄关,
保障主人家的私密性
右侧布置生活区,
厨房餐客厅,待客交际
左侧设计两卧,
安静舒适
卧室4
阳台
卫生间2
起居室
二层为居住区
双主卧带独立卫浴,
日常起居生活更方便
2客卧+1公卫,
亲朋好友留宿也毫无压力
起居室连接阳台,
让家人的休闲空间更加宽敞
效果图设计
建筑整体
新中式风格
浅色墙面搭配咖啡色线条,
蕴含沉稳大气之风;
大面积使用透明门窗,
打造舒适、敞亮的室内环境
咖啡色简单线条,
勾勒出新中式韵味
▲立面效果图
宽大屋檐,
保护墙体同时为室内荫凉
设置阳台和露台,
方便采光同时增添凹凸层次
门厅精美支柱
,烘托出别墅大气
关注我们
获取最新资讯
您可以了解更加全面的融境
融境作品
前往了解融境作品>>
业务领域
查看融境业务领域>>
关于融境
深入了解融境>>
新闻中心
成为融境的一员>>